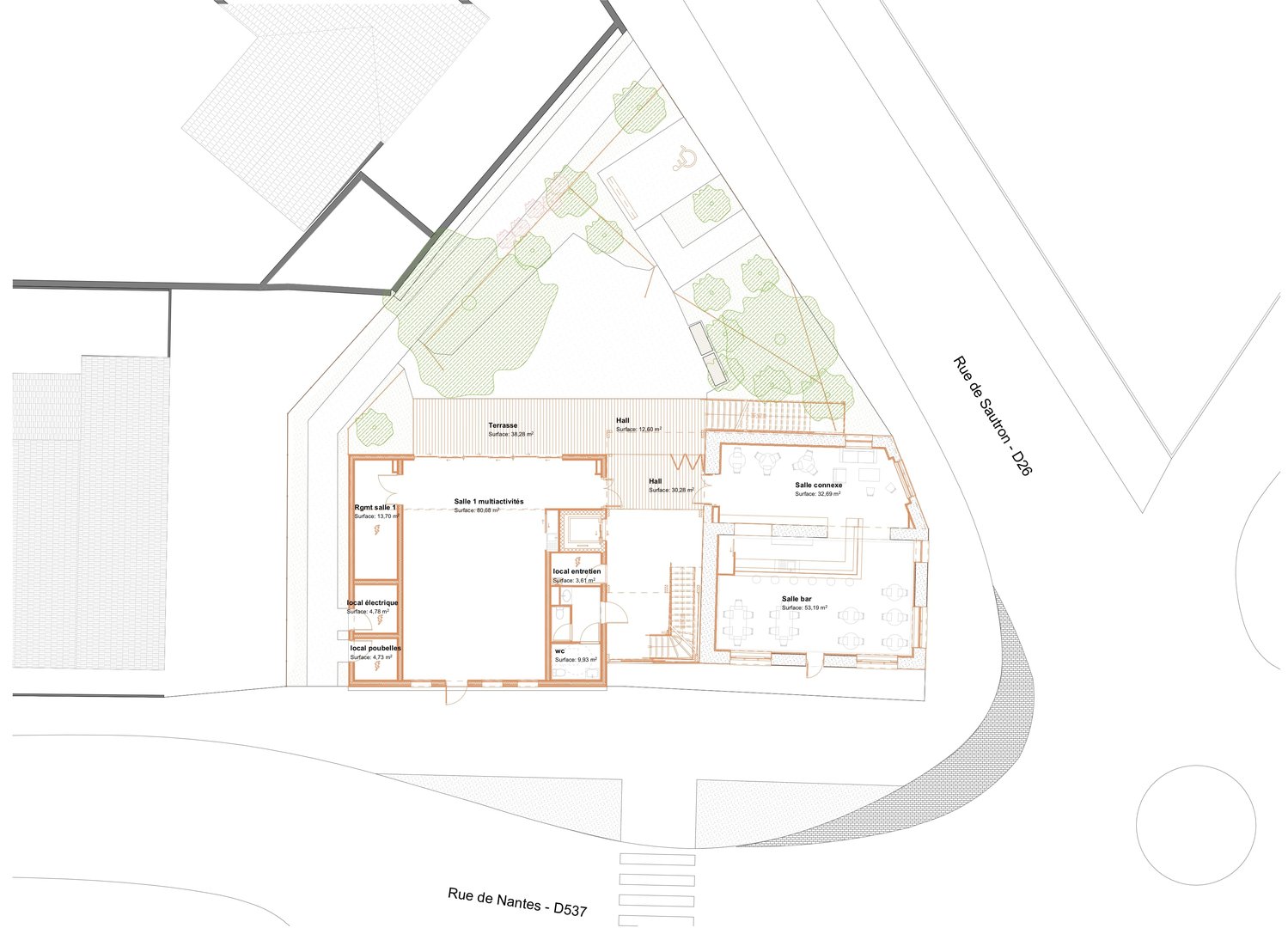
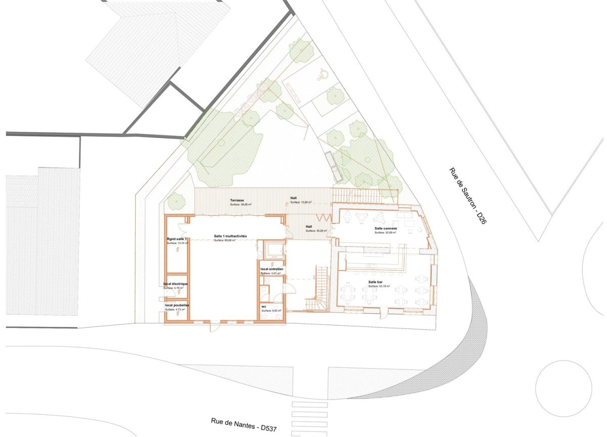
La réhabilitation du café de la Treille est un projet essentiel pour ce lieu symbolique et chargé d’histoire du village de la Ménardais à Treillières. Il intègre la création par extension d’un tiers-lieu proposant des espaces modulables et largement ouverts sur les espaces extérieurs et jardin attenants. Ainsi le nouveau café de la Treille est un lieu de sociabilité majeur pour les habitants.
Le projet est pensé pour être le plus exemplaire possible : la maçonnerie du bâti existant ayant été recouverte des décennies par un enduit ciment non perspirant, elle est maintenant protégée par un enduit chaux extérieur et un correcteur thermique chaux chanvre à l'intérieur, laissant respirer l'ensemble des murs. L’extension est réalisée en ossature bois avec un remplissage isolant biosourcé. Enfin, le réemploi est mis en avant dans l'ensemble du projet et notamment avec la réalisation de remplissage des garde-corps et portails possible grâce à un échange constant entre entreprises, MOE et MOA.